產品簡介
PBWT-B型自切割型一體式不銹鋼污水提升設備采用全密閉式整體結構設計,箱體及管路選用具備抗外力性能較好的SUS304不銹鋼材質,將泵及管路內置,大大節約設備安裝空間,安裝有加長耦合裝置,方便檢修,全流道出水管路加裝有我公司自主研發的不銹鋼快裝式球形止回閥,PLC智能控制系統可實現設備交替工作,是一款優質的小型空間污水提升設備。
◆ 地鐵站、地下通道、地下車庫、地下人防工程污水提升排放;
◆ 餐飲、廚房、商超、娛樂中心、商務樓宇、酒店等商服性場所污水提升排放;
◆ 各類小區、別墅、民用建筑等中小型無人操作污水輸送站排放場所 ;
◆ 各類醫院門診、病房污水的無害化處理及達標排放。
型號意義

產品優勢
1、采用臥式固液分、反沖裝置,免結護、免清掏;
2、設計采用密閉式箱式一體化結構,箱體自帶檢修 口,節約空間,無異味、超靜昔,選用SUS304不銹鋼材 質,穩定定耐用;
3、水錄,選配國際品牌無堵塞葉輪,雙泵可自動交替運行,互為備用,雜質粉碎化處理,無堵塞,節能;
4、液位檢測器,采用316不銹鋼電極控制水泵的啟、停,反應靈敏,防腐耐用;
5、全流逋設計,進、出水管路加裝有不銹鋼快裝式球形止回閥,杜絕回流、卡阻現象;
6、智能化控制系統,PLC智能控制系統,可遠程監控,兼頰手動、自動功能,具有缺相、過載、水泵防銹磁等保護功能,確保無溢流。
性能參數
序號 |
設備型號 |
設備排污量 |
揚程 |
單泵功率 |
有效容積 |
|
M3/h |
L/s |
M |
kw |
L |
||
1 |
WT-A/10-18-1.5 |
10 |
2.8 |
18 |
1.5 |
1100 |
2 |
WT-A/10-25-2.2 |
10 |
2.8 |
25 |
2.2 |
1100 |
3 |
WT-A/10-33-3.0 |
10 |
2.8 |
33 |
3 |
1100 |
4 |
WT-A/15-16-1.5 |
15 |
4.2 |
16 |
1.5 |
1100 |
5 |
WT-A/15-22-2.2 |
15 |
4.2 |
22 |
2.2 |
1100 |
6 |
WT-A/15-30-3.0 |
15 |
4.2 |
30 |
3 |
1100 |
7 |
WT-A/20-10-1.5 |
20 |
5.6 |
10 |
1.5 |
1100 |
8 |
WT-A/20-16-2.2 |
20 |
5.6 |
16 |
2.2 |
1100 |
9 |
WT-A/20-20-3.0 |
20 |
5.6 |
20 |
3 |
1100 |
10 |
WT-A/20-28-4.0 |
20 |
5.6 |
28 |
4 |
1100 |
11 |
WT-A/20-35-5.5 |
20 |
5.6 |
35 |
5.5 |
1100 |
12 |
WT-A/30-10-2.2 |
30 |
8.3 |
10 |
2.2 |
1100 |
13 |
WT-A/30-15-3.0 |
30 |
8.3 |
15 |
3 |
1100 |
14 |
WT-A/30-22-4.0 |
30 |
8.3 |
22 |
4 |
1100 |
15 |
WT-A/30-30-5.5 |
30 |
8.3 |
30 |
5.5 |
1100 |
16 |
WT-A/40-33-7.5 |
40 |
11.1 |
33 |
7.5 |
1340 |
17 |
WT-A/45-8-2.2 |
45 |
12.5 |
8 |
2.2 |
1340 |
18 |
WT-A/45-12-3.0 |
45 |
12.5 |
12 |
3 |
1340 |
19 |
WT-A/45-16-4.0 |
45 |
12.5 |
16 |
4 |
1340 |
20 |
WT-A/45-22-5.5 |
45 |
12.5 |
22 |
5.5 |
1340 |
21 |
WT-A/50-8-2.2 |
50 |
13.9 |
8 |
2.2 |
1340 |
22 |
WT-A/50-10-3.0 |
50 |
13.9 |
10 |
3 |
1340 |
23 |
WT-A/50-15-4.0 |
50 |
13.9 |
15 |
4 |
1340 |
24 |
WT-A/50-20-5.5 |
50 |
13.9 |
20 |
5.5 |
1340 |
25 |
WT-A/50-25-7.5 |
50 |
13.9 |
25 |
7.5 |
1340 |
26 |
WT-A/75-6-2.2 |
75 |
20.8 |
6 |
2.2 |
1340 |
27 |
WT-A/75-8-3.0 |
75 |
20.8 |
8 |
3 |
1340 |
28 |
WT-A/75-10-4.0 |
75 |
20.8 |
10 |
4 |
1340 |
29 |
WT-A/75-16-5.5 |
75 |
20.8 |
16 |
5.5 |
1340 |
30 |
WT-A/75-21-7.5 |
75 |
20.8 |
21 |
7.5 |
1340 |
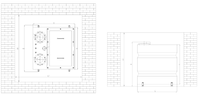
結構圖紙

安裝尺寸
1、環境溫度:介質溫度不超過40°C ,即時溫度不高于60°C ;
2、相對濕度:0°(不結冰)-40°C相對濕度20%-90%且工作環境中無腐蝕性和易燃易爆液體;
3、供電電源:電源頻率為50±5HZ,電壓默認為三相交流380V±10%,帶"D"為220V兩相交流電壓;
4、海拔高度:正常工況1000m以下,調節控制元件可實現其他工況要求;
5、安裝環境:安裝地點無導電或易燃粉塵,無腐蝕金屬及破壞絕緣的氣體或其他介質。
注意事項
故障排除:
序號 |
故障內容 |
故障分析 |
解決方法 |
1 |
跳閘、跳空開 |
電機負載大,嚴重過流 |
關出水閥門,增加阻力 |
線路破損,造成短路 |
檢查線路 |
||
電機短路 |
更換電機 |
||
2 |
電機噪音大 |
軸承缺油 |
加黃油 |
超負載運行 |
關小出水閥門,增加阻力 |
||
電機反轉 |
調整電機線 |
||
3 |
電機運轉,不出水 |
電機反轉 |
調整電機線 |
水泵堵塞 |
清理水泵 |
||
止回閥打不開 |
檢修止回閥 |
||
4 |
電機運轉,水箱內翻水花,但不出水 |
止回閥封閉不嚴 |
更換止回閥 |
水泵與分離器連接漏水 |
緊固連接位 |
||
分離器密封不嚴 |
檢查分離器,更換密封墊 |
||
5 |
手動、自動都發無法啟動 |
控制柜短路 |
檢查,并修復 |
零線斷開 |
檢查零線 |
||
保險絲保護 |
檢查輸出線路是否短路 |
||
故障保護 |
水泵過載,關出水閥門 |
||
進線缺相 |
檢查電源進線 |